
MAG has developed another outstanding residential luxury property called Keturah Reserve. The developer has thoughtfully designed a unique property with 1-3 bed apartments and 4-5 bed townhouses as well as a variety of excellent amenities.
MAG Keturah Reserve at MBR City is an upscale residential development at Meydan that offers a wide range of elegant a 1 to 3 bedroom apartments and 4 & 5 bedroom townhouses. This extraordinary development provides residents with a unique lifestyle.
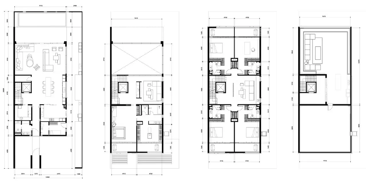
Each three story townhouse is divided into two separate areas - the private area at the back of the property and the common area at the front.
Every property in Keturah Reserve will come completely equipped with fixtures and finishes from popular brands like Dyson, Quooker, Miele and TOTO.
Residents of this gated community can enjoy a large layout. Living here will give residents a completely new aspect of life.
The residents of the community will also have access to a wide range of premium amenities, such as swimming pools, BBQ, expansive communal spaces, outdoor pool, gym, yoga, restaurants, running tracks, ladies pool, sauna, tennis and football courts, kids play area and cinema.
Everything has been carefully designed and built with a modern mentality, so the residents will have the opportunity to access their daily needs easily. The majority of the property is filled with innovative standard amenities, enabling people to enjoy a completely modernized lifestyle.
The residents can easily reach to Dubai Marina in less than 30 minutes and Business Bay & Downtown Dubai in only 10 minutes away. The Meydan One Mall, Dubai Mall and Dubai Hills Mall are also closely located to the property
The residents can quickly get from here to Dubai's important locations and attractions. You can get easy access to major highways such as Al Khail Road, Sheikh Mohammed Bin Zayed Road and Sheikh Zayed Road.

Being the first innovative project of such, Keturah promises to have one of the highest ROI – 7%. The project has great potential due to its cutting edge approach & impressive return on investment. Thus, be sure to check out 4 and 5 bedroom townhouses for sale in MAG City Dubai.
You can also apply for a 10-year Golden Visa with a minimum qualifying amount of AED 2M. This will greatly ease your living in the United Arab Emirates by providing sponsorship for family members and domestic workers, among many other benefits.
Keturah Reserve boasts a wide range of amenities, including an outdoor pool, gym, spas, restaurants, healthcare facilities, and a kid's play area. The various recreational and health-related activities available make it an ideal location for residents seeking convenience and a vibrant community.












The neighbourhood is conveniently located near shopping centres, restaurants, schools, hospitals, and other essential facilities. The location is easily accessible to major roads, making it convenient to travel around.
Are you also looking for the most iconic residential property in Dubai? Mag Keturah is the best option for you that offer great deals. We have access to the latest off plan developments, we can help you find the ideal property to meet your needs as well as your finances. With our expertise and guidance, you can take advantage of the high potential for return on investment in the off-plan properties offers.
Permit Number: 0071399413

Villas
Townhouses
AED 2,100,000
Damac Lagoons
4, 5
2273 - 3397 Sq Ft

Villas
AED 5,100,000
The Valley
4, 5
4950 - 10004 Sq Ft

Townhouses
AED 2,470,000
Damac Lagoons
4, 5
2282 - 3300 Sq Ft

Villas
AED 8,100,000
The Oasis
4, 5
5843 - 8966 Sq Ft

Villas
Townhouses
AED 2,990,000
Damac Lagoons
4, 5
2285 - 3468 Sq Ft

Townhouses
AED 1,900,000
Damac Lagoons
4, 5
2273 - 3377 Sq Ft

Townhouses
AED 2,458,800
Jebel Ali Village
4, 5
4200 - 6006 Sq Ft

Apartments
AED 15,140,000
Al Sufouh
4, 5
4850 - 5100 Sq Ft

Villas
AED 13,500,000
Meydan
5 BR
7,335 Sq. Ft.

Villas
AED 11,200,000
Dubai Hills Estate
4, 5
5090 - 5365 Sq Ft
Subscribe to our Daily, Weekly and Monthly Newsletters, Expert Advice and Latest Launch with Zero Spam, Unsubscribe Anytime.