
يقع برج 360 ريفرسايد كريسنت ضمن مشروع سوبها هارتلاند 2 المرموق، وهو البرج السادس في المجتمع، ويوفر 322 وحدة سكنية فاخرة. بفضل وسائل الراحة التي تشبه المنتجعات والديكورات الداخلية الجميلة التي تجذب المساحات المفتوحة والحجم، يوفر برج 360 ريفرسايد كريسنت أسلوب حياة متطورًا ومرتفعًا لأولئك الذين يستمتعون بالهدوء والسكينة التي توفرها الحياة في المدينة وسط الواجهة البحرية المتلألئة للمجتمع.
يرتفع برج 360 ريفرسايد كريسنت بشكل مهيب إلى ارتفاع 65 طابقًا، ويمثل نموذجًا للرقي في سوبها هارتلاند 2 في منطقة ميدان. الواجهة المذهلة هي البرج السادس في المجتمع المحاط بنوافذ ممتدة من الأرض حتى السقف تجسد روعة الألوان المحيطة الطبيعية التي تحتوي على مسطحات مائية صافية وطريق العين.
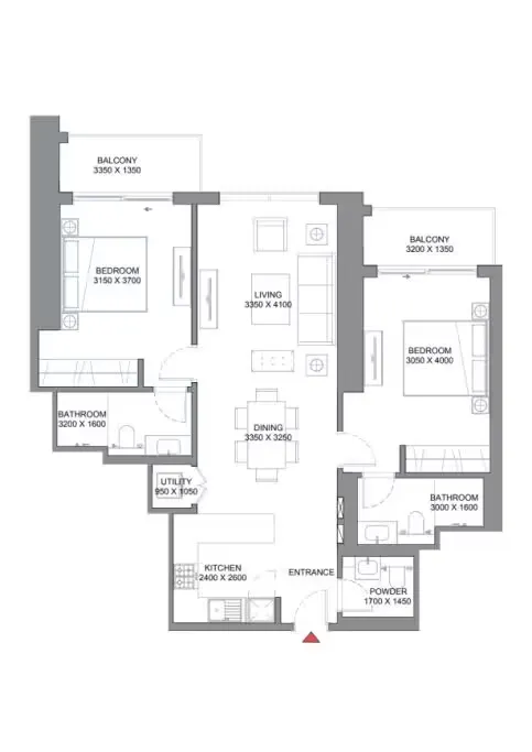
تتميز المباني المصممة بدقة بمجموعة من مناطق المعيشة، من وحدات مريحة من غرفة نوم واحدة إلى خيارات أكثر اتساعًا من غرفة نوم واحدة ونصف وغرفتي نوم. مع مساحة تتراوح من 611 إلى 1887 قدمًا مربعًا، تلبي هذه المساكن المصممة بعناية مجموعة متنوعة من التفضيلات وأنماط الحياة. من اللحظة التي يخطو فيها المرء قدمه إلى مدخل الردهة، يمكن للمقيمين تجربة شعور متزايد بالراحة والهدوء والفخامة.
في وقت من التقدم الجمالي والبنيوي، يتميز هذا البرج الشاهق بإبداع معماري رائد ببنيته الفريدة على شكل ماسة مع تعظيم تدفق الضوء الطبيعي والمناظر الطبيعية الجميلة للمسطحات المائية.
تتميز مناطق المعيشة الشاسعة بأرضيات من الرخام الأبيض ودرجات دافئة من اللون الرمادي وتفاصيل وديكورات ذهبية معقدة، إلى جانب نوافذ واسعة تسمح بدخول الكثير من ضوء الشمس.
لإضافة الإبداع إلى المطبخ، توجد أجهزة تخزين معاصرة من الدرجة الأولى، وبلاط خلفي درامي، وأسطح عمل أنيقة، وخزائن مخصصة. تأتي جميع المنازل مع غرفة مسحوق وشرفات واسعة ذات واجهة زجاجية.

لا ينبغي للمستثمرين المحتملين الراغبين في دخول سوق العقارات التنافسية في دبي أن يتجاهلوا الفرصة التي يوفرها سعر 360 Riverside Crescent. بالنظر إلى فرصة استثمارية جيدة، قد يختار المشترون المميزون خطة دفع 80/20 لتغطية الجزء المتبقي من العقار، والذي تبلغ تكلفته الأولية 1.400.000 درهم إماراتي.
مطلوب دفعة أولى بنسبة 20٪ من المستثمرين في وقت الحجز. وهذا يترك 60٪ أخرى يجب دفعها أثناء إنشاء المشروع. عند الانتهاء ونقل الملكية، يجب دفع نسبة 20٪ المتبقية.
من المتوقع أن يكتمل المشروع بحلول الربع الرابع من عام 2027.
تتميز شقق 360 Riverside Crescent بأسلوب حياة فاخر لا مثيل له. توجد وسائل راحة مشتركة تتميز بمجموعة من خيارات البيع بالتجزئة وتناول الطعام المصممة لتلبية الأذواق المميزة للسكان. علاوة على ذلك، تتدفق النباتات من شرفات هذه المباني الأنيقة، مما يخلق واجهة خضراء توفر اتصالاً غامرًا بالطبيعة.
أما بالنسبة للترفيه في الهواء الطلق، فإن منطقة لعب الأطفال والحدائق المفتوحة تتيح للعائلات فرصة للتواصل والمشاركة في الأنشطة الترفيهية مع أطفالهم. يتمتع عشاق اللياقة البدنية بمساحة مخصصة لمسارات الجري وملاعب الأنشطة الرياضية مثل المضرب ونصف ملعب كرة السلة وملعب تنس الاسكواش وكرة الريشة.











يقع موقع 360 Riverside Crescent بالقرب من منطقة ند الشبا. وسط مدينة مزدحمة، لا يتنازل هذا المبنى عن إمكانية الوصول. على مرمى حجر من هناك مجموعة كبيرة من أماكن الترفيه والمعالم السياحية الشهيرة مثل نادي دبي كريك للغولف واليخوت الخلاب (25 دقيقة بالسيارة)، ومحمية رأس الخور (11 دقيقة بالسيارة)، ومنتزه هارتلاند جرينز (15 دقيقة بالسيارة).
مع وجود الطرق السريعة الرئيسية في مكان قريب، فإن التنقل من وإلى هذا الموقع سهل للغاية، مما يجعله خيارًا مثاليًا للمقيمين الذين يبحثون عن تجربة معيشية مريحة ومتصلة جيدًا في قلب المدينة.
هل تبحث أيضًا عن أكثر الشقق شهرة وأناقة في دبي؟ 360 Riverside Crescent في منطقة ميدان المرغوبة هو الخيار الأفضل لك ويقدم صفقات رائعة.
لدينا إمكانية الوصول إلى أحدث التطورات على المخطط، ويمكن لوكلائنا الخبراء مساعدتك في العثور على العقار المثالي لتلبية احتياجاتك وكذلك مواردك المالية. بفضل إرشاداتنا الكاملة، يمكنك الاستفادة من الإمكانات العالية لعائد الاستثمار في عروض العقارات على المخطط.

شقق سكنية
درهم 1,070,000
مدينة السيارات
1, 1.5, 2, 3
536 - 1889 Sq Ft

شقق سكنية
درهم 3,281,518
ميناء دبي
1, 2
841 - 2023 Sq Ft

شقق سكنية
درهم 1,260,000
سوبها هارتلاند 2
1, 2
526 - 1168 Sq Ft

شقق سكنية
درهم 1,140,000
سوبها هارتلاند 2
1, 2
496 - 1134 Sq Ft

شقق سكنية
درهم 1,270,000
سوبها هارتلاند 2
1, 2 & 3
506 - 1489 Sq Ft

شقق سكنية
درهم 1,820,000
سوبها هارتلاند
1, 2, 3 & 4
729 - 2445 Sq Ft

شقق سكنية
درهم قريباً
سوبها سنترال

شقق سكنية
درهم 1,130,000
مدينة السيارات
1, 1.5 & 2
602 - 1160 Sq Ft

شقق سكنية
درهم 1,640,000
سوبها هارتلاند 2
1, 1.5, 2, 3 & 3.5
625 - 1681 Sq Ft

شقق سكنية
درهم 1,520,000
سوبها سنترال
1 & 2
568 - 1553 Sq Ft

شقق سكنية
درهم 1,600,000
مثلث قرية جميرا
1, 2, 3
775 - 1999 Sq Ft

شقق سكنية
درهم 1,500,000
سوبها سنترال
1 & 2
517 - 853 Sq Ft

شقق سكنية
درهم 1,950,000
سوبها سنترال
1
648 - 786 Sq Ft

شقق سكنية
درهم 1,600,000
سوبها هارتلاند 2
1 & 2
551 - 1,001 Sq Ft

الفلل
درهم قريباً
محمية سوبها
4, 5 & 6
4905 - 7191 Sq Ft

الفلل
درهم قريباً
محمية سوبها
4 & 5
2520 - 4154 Sq Ft

شقق سكنية
درهم 15,140,000
الصفوح
4, 5
4850 - 5100 Sq Ft

شقق سكنية
درهم 1,099,996
سوبها هارتلاند
1, 2, 3, 4
1880 - 2401 Sq Ft

الفلل
درهم 22,716,153
سوبها هارتلاند 2
5, 6
8413 Sq Ft

شقق سكنية
درهم 1,550,000
سوبها هارتلاند
1, 2, 3, 4
798 - 2724 Sq Ft

شقق سكنية
درهم 3,180,000
ميناء دبي
1, 2, 3, 4
860 - 2458 Sq Ft

شقق سكنية
درهم 1,560,000
سوبها هارتلاند 2
1, 1.5, 2, 2.5, 3
634 - 1227 Sq Ft

شقق سكنية
درهم 975,000
سوبها هارتلاند
1, 2,3 & 4
716 - 2652 Sq Ft

شقق سكنية
درهم 1,200,000
سوبها هارتلاند
1, 2, 3
611 - 1887 Sq Ft

شقق سكنية
درهم 1,710,000
سوبها هارتلاند 2
1, 1.5, 2, 2.5, 3
745 - 1731 Sq Ft

شقق سكنية
درهم قريباً
سوبها هارتلاند 2

شقق سكنية
درهم 1,300,000
سوبها هارتلاند
1, 2, 3
745 - 1710 Sq Ft

شقق سكنية
درهم 1,490,000
سوبها هارتلاند 2
1, 1.5, 2
609 - 1236 Sq Ft

الفلل
درهم 6,700,000
سوبها هارتلاند
4, 5
2990 - 4844 Sq Ft

شقق سكنية
درهم 981,154
مدينة السيارات
1, 1.5, 2
545 - 988 Sq Ft

شقق سكنية
درهم 1,698,573
سوبها هارتلاند 2
1, 1.5, 2, 2.5, 3
738 - 2002 Sq Ft

الفلل
درهم 7,930,000
دبي لاند
4, 5 & 6
4958 - 7186 Sq Ft

شقق سكنية
درهم 21,132,337
مرسى دبي
3, 4
3896 - 5757 Sq Ft

شقق سكنية
درهم 1,300,000
سوبها هارتلاند 2
1, 1.5, 2
496 - 1231 Sq Ft

شقق سكنية
درهم 1,300,000
سوبها هارتلاند
1, 2, 3
745 - 1710 Sq Ft

شقق سكنية
منازل المدينة
درهم 1,790,000
وسط مدينة دبي
1, 2
740 - 1065 Sq Ft

شقق سكنية
درهم 1,470,000
مينا راشد
1, 2
765 - 1734 Sq Ft

شقق سكنية
درهم 488,000
قرية جميرا الدائرية
1, 2
387 - 1300 Sq Ft

شقق سكنية
شقق بنتهاوس
منازل المدينة
درهم 1,400,000
مدينة دبي البحرية
Studio, 1, 2, 3, 4
372 - 7035 Sq Ft

شقق سكنية
درهم 3,281,518
ميناء دبي
1, 2
841 - 2023 Sq Ft

شقق سكنية
درهم 958,000
الفرجان
1, 2
670 - 1465 Sq Ft

الفلل
درهم 22,716,153
سوبها هارتلاند 2
5, 6
8413 Sq Ft

شقق سكنية
درهم 1,099,996
سوبها هارتلاند
1, 2, 3, 4
1880 - 2401 Sq Ft

شقق سكنية
درهم 21,132,337
مرسى دبي
3, 4
3896 - 5757 Sq Ft
اشترك في نشراتنا الإخبارية اليومية والأسبوعية والشهرية، ونصائح الخبراء وآخر إصدار مع عدم وجود بريد عشوائي، وإلغاء الاشتراك في أي وقت.